ABOUT
CONTACT
ABOUT
CONTACT
SKYSCRAPER
IN CLASS WORK
ORIGINAL DESIGN
DIGITAL CONCEPT RENDER
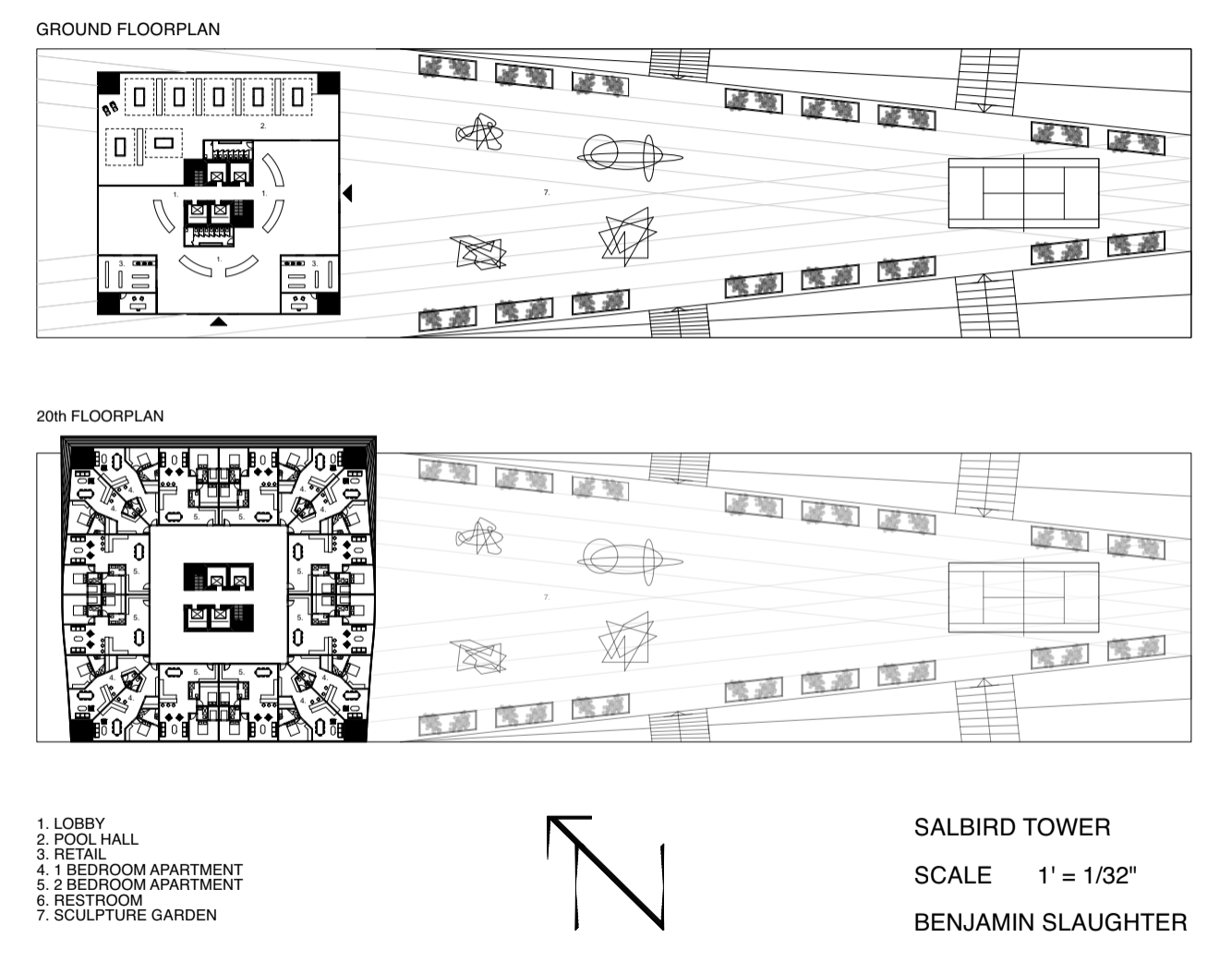
PLANS: INK ON VELLUM
↑
Back to Top